新築一戸建てをお探しの方のために 新築一戸建てをお探しの方のために

物件情報

西区小針新築建売住宅

新築
住宅
西区小針新築建売住宅

価格
2980 万円
月々の支払い
月々 69,846 万円
土地面積
215.06㎡
建物面積
92.74㎡
間取り
3LDK
通学区
小針小学校
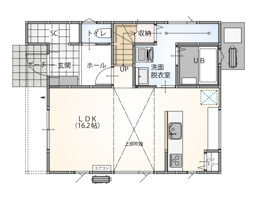
FLOORPLAN

※間取り図をクリックすると拡大します

1階間取り
2階間取り
電話

受付時間 10:00~17:00
定休日/水曜日・木曜日

ACCESSMAP

※マウスで地図を自由自在にドラッグしたり、ダブルクリックでズームできます。
※物件によっては正確な位置を表示していない場合があります。詳細はお問い合わせください。
※表示されるデータは最新ではありません。建物の外観や周辺の景観などが変わっている場合があります。

LOCATION

    準備中...

INTERIOR
FACILITY
  • ◎設備保証
    10年間の無料設備保証がついているので安心です!

  • ◎エコガラス
    ・窓の方角によって日差しを入れやすくしている窓、そうでない窓にわける工夫をしているので冬は明るく、夏は暑くなりづらくなっています。

  • ◎床の断熱材
    ・床には100mmの厚さの発砲スチロールを使っています!!床に隙間なく敷き詰めてあり、床下からの冷気が伝わりづらいので冬の寒い日でも床暖房いらずで快適に過ごせます♪

  • ◎天井の断熱材
    ・天井にはセルロースファイバー250mmを使用!高断熱なだけでなく、遮音性にも優れています!強い雨が降っても音が気になりません!さらに車通りが多い道路沿いや、線路沿い、小さなお子様がいるご家族でも安心です♪

  • ◎壁の断熱材
    ・壁は県内の建売では珍しい二重断熱です(マグイゾベール100mm+発泡スチロール50mm)一般的な住宅で使われているグラスウールの3倍の性能を持つマグイゾベールと発砲スチロールで家中を覆っているので熱を逃しません☆

  • ◎24時間熱交換換気扇
    ・部屋の温度は保ったまま空気の入れ替えができます!
    冬でも窓を開けて換気する必要がないため、外の冷たい空気が入ってくることはなくエアコンも弱運転で稼働!常にきれいで暖かい・涼しい空気を各部屋に届けます!+α光熱費削減になります(^^♪

電話

受付時間 10:00~17:00
定休日/水曜日・木曜日

INFORMATION
物件名 西区小針新築建売住宅
物件所在地 新潟県西区小針4丁目623-3
交通1 JR越後線「小針」徒歩11分
価格 2980万円 間取り 3LDK
土地面積 215.06㎡ 建物面積 92.74㎡
現況 完工 土地権利 所有権
接道 北西 地目 宅地
都市計画 市街化区域 用途地域 2種中高
建ぺい率 60% 容積率 200%
階数 2階 構造 木造
築年月 2024年8月 引渡し 相談
駐車場 カースペース 2台 建築確認番号 NK第23長0870号
小学校区 小針小学校 取引態様 一般媒介
設備・条件
備考
情報更新日 2025月11月11日 更新予定日 随時
電話

受付時間 10:00~17:00
定休日/水曜日・木曜日

住まいっと

住まいっとは、圧倒的な物件情報量と経験豊富な家づくりのプロスタッフが、あなたの夢のマイホーム探しをお手伝いいたします。

無料見学&相談!
来店予約はこちら!

物件情報
来店予約
電話問合せ