イベント情報

【完成見学会】スーパーまで車で2分!便利で快適な生活を♪

【完成見学会】スーパーまで車で2分!便利で快適な生活を♪

日程:
12月1日~12月15日
場所:
長岡市城岡
時間:
9:00~18:00
スーパーまでの距離が近く、快適な生活が送れます!
収納が豊富なので、買ったもので家の中が散らかることもありません♪
電話

受付時間 10:00~17:00
定休日/水曜日・木曜日

イベント詳細

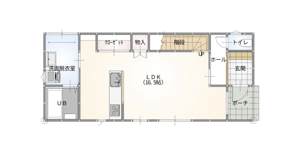
FLOORPLAN

※間取り図をクリックすると拡大します

1階間取り
2階間取り
電話

受付時間 10:00~17:00
定休日/水曜日・木曜日

ACCESSMAP

※マウスで地図を自由自在にドラッグしたり、ダブルクリックでズームできます。
※物件によっては正確な位置を表示していない場合があります。詳細はお問い合わせください。
※表示されるデータは最新ではありません。建物の外観や周辺の景観などが変わっている場合があります。

LOCATION
  • ドラッグトップス城岡店
    480m
    徒歩6分
  • ファミリーマート長岡下々条店
    430m
    徒歩6分
  • 原信エクスプレスマーケット城岡店
    500m
    徒歩7分
  • 城岡公園
    650m
    徒歩9分
INTERIOR
  • ◆LDK
    ・シンプルで使いやすいLDKで、快適な生活を実現する理想の空間です。
    ・明るい日差しが差し込むLDKで、家族が集う温かいひとときを楽しみましょう♪

  • ・収納力豊富なシステムキッチン!タッチレス水栓なので料理中のストレスが軽減!3口のIHで効率よく料理を!

  • ・キッチンスペースを広く確保しているので、冷蔵庫・食器棚を置いても十分なスペースがあります!なので毎日のお料理もはかどります◎

  • ・自然光があふれる洋室で、心豊かな生活を楽しむ理想の場所。

  • ・シンプルなデザインの洋室で、自分だけの空間を楽しもう♪

  • ・収納力抜群の洋室、自由なインテリアで個性を表現できる空間。

  • ・窓を付け、明るい印象に!鏡裏と洗面下に収納があり、空間をスッキリ保つことができます!

  • ・シンプルで一日の疲れを癒す落ち着いた空間に♪大人でも足を伸ばせて快適です。

  • リクシルのシャワー付きトイレです!

電話

受付時間 10:00~17:00
定休日/水曜日・木曜日

  • 豊富な物件情報数
  • キッズルーム完備
  • 住宅ローンもお任せ

家づくりに関することなら何でも
私たちにお任せ下さい

住まいっとにお任せ下さい 住まいっとにお任せ下さい

広々明るい店内で、
ゆっくりくつろぎながらお話しできます!

住まいっと

住まいっとは、圧倒的な物件情報量と経験豊富な家づくりのプロスタッフが、あなたの夢のマイホーム探しをお手伝いいたします。

無料見学&相談!
来店予約はこちら!

物件情報
来店予約
電話問合せ